Blender Workspace

135 Madison Avenue, FL 8, New York, NY 10016 - Confirmed Open
Blender Workspace is an award-winning luxury workspace located at 135 Madison Avenue in NoMad, New York City. The office space was thoughtfully designed by our friends at Parts And Labor Design, an award-winning hospitality design architecture firm. Launched in January 2017, Blender caters to established professionals seeking beautiful aesthetics, an elevated work experience, and WeWork alternative. Our co-working space is best suited for creative, fashion, media, finance, wellness and lifestyle brands Blender is leading the transformation of a 12 story turn-of-the-century property - from garment and rug merchants, to innovative tech and creative firms. Located just North of Madison Square Park on the corner of 31st and Madison Avenue, Blender occupies the entire 8th floor totaling 15,000 square feet of luxury office space and amenities. Complimented by natural light and lofty ceilings, our workspace is filled with positive energy to empower high-caliber professionals and their businesses. Featuring a café, with catering available upon request. Well-appointed Danish modern furniture flanks the 3,000 square foot café, delivering a comfortable boutique hotel experience. A designer's dream come true, Blender is an impressive and sophisticated office space rental in NYC.
Read more
Host at Blender Workspace
Front Desk
Host
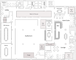
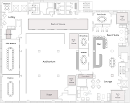
Auditorium
Discover Blender’s new 5,000 sqft Auditorium, a versatile space on the 8th floor of a 14-story office loft (11.5' ceiling) building perfectly located on the corner of Madison Avenue and East 31st St. Our space is full-service with in-house event management and production teams coordinating catering, staffing and furniture rentals. Technology and AV capabilities include live streaming, multi-panel video recordings, Samsung LED tv panels, Schure lav mics, Bose PA sound, JB L house system. Blender features an adjacent 3,000 sqft Cafe Event Suite, plus 8 meeting spaces including 2 large board/breakout rooms overlooking Madison Ave. Note: Space venue fee does not include staffing, furniture, stage, or audio-visual rentals.
Meeting Room Fifth Ave
Sun drenched, 650 sqft boardroom accomodates 24+, Large windows with views of Madison Avenue, well appointed with premium furnishings for large meetings and conferences. On-site community manager and hospitality staff. + Community Manager - technical support + Fiber WiFi + Samsung 65″ QLED TV (Video conference enabled) + Video Conference Camera + HDMI cable + Power ports floor + Full service catering available upon request + Neat Bar all-in-one video conferencing + Easels and flipcharts Public Transportation: 6/N/R Subway Trains, Grand Central Terminal and Penn Station both walking distance.
The Lounge
The Lounge offers 1,200 sqft of dedicated space within our award-winning corporate event suite catering to Fortune 500 clients and brands seeking a 5-star hospitality experience. Blender Event Space is prominently located on Madison Ave at the corner of 31st street in Midtown Manhattan. We exist in a early 1900's loft building with 11 ft beamed ceilings and multiple window exposures. Our aesthetic is classic contemporary with a bright elegant vibe accentuated by thoughtful details. Our full-service events team designs and manages the production from inception to execution. We offer a select list of top NYC catering, beverage, audio visual and entertainment partners and accommodate a variety of event types such as: + Corporate Offsites + Panel Discussions + Film and Photo Shoots + Product Launches Standing capacity is 75, seated is 50 Location: Madison Ave between 31st and 32nd Public Transportation: 6/N/R/F Subway trains, Herald Square Station, Penn Station, and Grand Central Terminal.
Meeting Room Broadway
Well appointed, and comfortable meeting space. 8 Person, 200 sqft + Samsung 60″ LED TV + Crestron AirMedia (screen mirror) + Fiber WiFi
The Bar
The Bar offers 1,000 sqft of dedicated space within our award-winning corporate event suite catering to Fortune 500 clients and brands seeking a 5-star hospitality experience. Blender Event Space is prominently located on Madison Ave at the corner of 31st street in Midtown Manhattan. We exist in a early 1900's loft building with 11 ft beamed ceilings and multiple window exposures. Our aesthetic is classic contemporary with a bright elegant vibe accentuated by thoughtful details. Our full-service events team designs and manages the production from inception to execution. We offer a select list of top NYC catering, beverage, audio visual and entertainment partners and accommodate a variety of event types such as: + Corporate Offsites + Panel Discussions + Film and Photo Shoots + Product Launches Standing capacity is 50, seated is 25 Location: Madison Ave between 31st and 32nd Public Transportation: 6/N/R/F Subway trains, Herald Square Station, Penn Station, and Grand Central Terminal.
The Study
The Study offers 1,000 sqft of dedicated space within our award-winning corporate event suite catering to Fortune 500 clients and brands seeking a 5-star hospitality experience. Blender Event Space is prominently located on Madison Ave at the corner of 31st street in Midtown Manhattan. We exist in a early 1900's loft building with 11 ft beamed ceilings and multiple window exposures. Our aesthetic is classic contemporary with a bright elegant vibe accentuated by thoughtful details. Our full-service events team designs and manages the production from inception to execution. We offer a select list of top NYC catering, beverage, audio visual and entertainment partners and accommodate a variety of event types such as: + Corporate Offsites + Panel Discussions + Film and Photo Shoots + Product Launches Standing capacity is 50, seated is 30 Location: Madison Ave between 31st and 32nd Public Transportation: 6/N/R/F Subway trains, Herald Square Station, Penn Station, and Grand Central Terminal.
Day Pass - Cafe & Lounge
Come work for the day at Blender's 3,000 sqft cafe and lounge. Mingle with members of our professional community, and get work done in comfort & style. Complimentary Amenities: 1Gb/s Fiber Wifi Printing (up to 10 sheets) Coffee, Tea, & Fruit-infused Water Kitchen & Microwave Private Phone Booths Blender is conveniently located at 135 Madison Avenue, near 6, B, D, F, M, N, Q, R, W trains.
Meeting Room Madison
Well appointed, comfortable meeting space , filled with natural light and designed to impress. 4 Person, 100 sqft + Samsung 60″ LED TV +Fiber WiFi + Crestron AirMedia (screen mirror) + HDMI, Data, and Power ports at table-top + Black dry erase board + Gray felt pinboard Full service catering options available upon request.
Meeting Room NoMad
Well appointed comfortable meeting space designed to impress. on-site Communbity Manager and hospitality staff to support your needs. 8 – 10 Person, 350 sqft + Samsung 65″ LED TV + FiberWiFi + Crestron AirMedia (screen mirror) + ClearOne Video Conferencing + HDMI, Data, and Power ports at table-top + Black dry erase board + Gray felt pinboard Full-service catering options available upon request
Meeting Room Park South
Well appointed, comfortable meeting space, filled with large windows and natural light designed to impress. 8 – 10 Person, 300 sqft + Samsung 65″ LED TV + Fiber WiFi + Crestron AirMedia (screen mirror) + HDMI, Data, and Power ports at table-top + Black dry erase board Hospitality and catering options available upon request.
Meeting Room Flatiron
Sun-Drenched 550 Sqft Boardroom with Large Windows Stunning Madison Avenue Views. Host up to 20 guests in this beautifully appointed boardroom, designed for large meetings and conferences. Enjoy premium furnishings, modern tech, and seamless hospitality for a top-tier experience. Features & Amenities: + Managed reception and hospitality services for a professional guest experience + Fiber WiFi for fast, reliable connectivity + Samsung 65″ QLED TV with video conferencing capabilities + Tabletop HDMI, data, and power ports for easy device connection + Neat Bar all-in-one video conferencing + Easels and flipcharts + Full-service catering available upon request Convenient Transportation: Easily accessible via 6, N, and R subway lines, as well as Grand Central Terminal and Penn Station. This space offers everything you need to impress and inspire.
Event Space
The Suite offers 3,000 sqft of award-winning corporate event space catering to Fortune 500 clients and brands seeking a 5-star hospitality experience. Blender Event Space is prominently located on Madison Ave at the corner of 31st street in Midtown Manhattan. We exist in a early 1900's loft building with 11 ft beamed ceilings and multiple window exposures. Our aesthetic is classic contemporary with a bright elegant vibe accentuated by thoughtful details. Our full-service events team designs and manages the production from inception to execution. We offer a select list of top NYC catering, beverage, audio visual and entertainment partners and accommodate a variety of event types such as: + Corporate Offsites + Panel Discussions + Film and Photo Shoots + Product Launches Standing capacity is 250, and up to 120 seated, theater style. Location: Madison Ave between 31st and 32nd Public Transportation: 6/N/R/F Subway trains, Herald Square Station, Penn Station and Grand Central Terminal
The Alcove Meeting Lounge
The Alcove is an open meeting lounge, perfect for team collaborations, brainstorming sessions, or breakout discussions. Mid-century modern design with large sectional and cozy armchairs for your comfort. Easels are available upon request. Complimentary Kobrick coffee, gourmet teas, and infused water. Catering available upon request.
Amenities & Services
WiFi

Find the SSID: Blender-guest, then login to our network page.

24/7 Access
Accessibility
Catering
Coffee/Tea
Door w/Lock
Entry
Filming Allowed
Filtered Water
Furnished
Health & Safety Policy
Hosted Reception

Community Manager available Monday-Friday, 9 AM - 7 PM.

Kitchen

Refrigerator, microwave available for public use.

Mailbox Services
Meeting Rooms
Parking

Paid parking offsite

Phone
Print/Scan/Copy

Small print jobs (<10 pages) are available at no charge.

PRO
Projector
Room Set-up
Storage
TV/Monitor
Video Conference
Whiteboard
Window View
Space Types
Event Space
Meeting Space
Desk
Diplomats mingle with university students
Reviews
Meeting Room Flatiron
Meeting Room Flatiron
155
5
Everything went really well.
Meeting Room Flatiron at Blender Workspace
135 Madison Avenue, FL 8, New York, NY 10016
Day Pass - Cafe & Lounge
Day Pass - Cafe & Lounge
155
Executive Assistant to the CEO
5
Lovely space to work in!
Day Pass - Cafe & Lounge at Blender Workspace
135 Madison Avenue, FL 8, New York, NY 10016
Day Pass - Cafe & Lounge
Day Pass - Cafe & Lounge
155
5
Day Pass - Cafe & Lounge at Blender Workspace
135 Madison Avenue, FL 8, New York, NY 10016
Day Pass - Cafe & Lounge
Day Pass - Cafe & Lounge
135
3
Day Pass - Cafe & Lounge at Blender Workspace
135 Madison Avenue, FL 8, New York, NY 10016
Day Pass - Cafe & Lounge
Day Pass - Cafe & Lounge
155
5
Great space, convenient, nicely designed
Day Pass - Cafe & Lounge at Blender Workspace
135 Madison Avenue, FL 8, New York, NY 10016
Day Pass - Cafe & Lounge
Day Pass - Cafe & Lounge
155
5
Day Pass - Cafe & Lounge at Blender Workspace
135 Madison Avenue, FL 8, New York, NY 10016
Day Pass - Cafe & Lounge
Day Pass - Cafe & Lounge
155
5
Best place so far!
Day Pass - Cafe & Lounge at Blender Workspace
135 Madison Avenue, FL 8, New York, NY 10016
Day Pass - Cafe & Lounge
Day Pass - Cafe & Lounge
145
4
Good. Only public wifi for day pass. Secure wifi only for members. I needed secure wifi.
Day Pass - Cafe & Lounge at Blender Workspace
135 Madison Avenue, FL 8, New York, NY 10016
Day Pass - Cafe & Lounge
Day Pass - Cafe & Lounge
155
5
Day Pass - Cafe & Lounge at Blender Workspace
135 Madison Avenue, FL 8, New York, NY 10016
Meeting Room Madison
Meeting Room Madison
155
5
Great space!
Meeting Room Madison at Blender Workspace
135 Madison Avenue, FL 8, New York, NY 10016
Day Pass - Cafe & Lounge
Day Pass - Cafe & Lounge
155
5
Great place to work
Day Pass - Cafe & Lounge at Blender Workspace
135 Madison Avenue, FL 8, New York, NY 10016
Day Pass - Cafe & Lounge
Day Pass - Cafe & Lounge
115
1
Day Pass - Cafe & Lounge at Blender Workspace
135 Madison Avenue, FL 8, New York, NY 10016
Day Pass - Cafe & Lounge
Day Pass - Cafe & Lounge
155
self
5
Day Pass - Cafe & Lounge at Blender Workspace
135 Madison Avenue, FL 8, New York, NY 10016
Day Pass - Cafe & Lounge
Day Pass - Cafe & Lounge
155
5
Day Pass - Cafe & Lounge at Blender Workspace
135 Madison Avenue, FL 8, New York, NY 10016
Day Pass - Cafe & Lounge
Day Pass - Cafe & Lounge
145
VP, Operations
4
Not a lot of people there, so it was nice to get more space. Guest wifi seemed decent. Good to have phone booth and cafe area
Day Pass - Cafe & Lounge at Blender Workspace
135 Madison Avenue, FL 8, New York, NY 10016
Day Pass - Cafe & Lounge
Day Pass - Cafe & Lounge
155
Social Media Manager
5
Nice and quiet. Plenty of space
Day Pass - Cafe & Lounge at Blender Workspace
135 Madison Avenue, FL 8, New York, NY 10016
Meeting Room Madison
Meeting Room Madison
155
5
Meeting Room Madison at Blender Workspace
135 Madison Avenue, FL 8, New York, NY 10016
Day Pass - Cafe & Lounge
Day Pass - Cafe & Lounge
155
5
worked out well to meet with the person who help me with 3 d modeling projects and also enabled a client to swing by and see the progress on their project
Day Pass - Cafe & Lounge at Blender Workspace
135 Madison Avenue, FL 8, New York, NY 10016

https://blenderworkspace.com/wp-content/uploads/2020/07/Blender-COVID-Resilient-Space.pdf

Schedule a tour
Select a date and time for your tour. Your venue host will confirm or propose a different time. We’ll send you a tour schedule with directions and times.
Go see the space
Checkout the space, ask questions and get a feel for the ambiance and surroundings.
Book it online
Once you've found your perfect space book it on LiquidSpace to ensure that you are protected under DASH®, have payment transparency and access to full LiquidSpace network benefits.
Schedule a Tour
Select a date and time for your tour. We’ll send a tour schedule with directions and times.
Design Review and Sign off
With your concierge review the different kits Launch, Sprint, Thrive or Tailored to choose the best fit-out for your team’s needs today and future growth requirements.
Complete Dash and Book It!
Once you've found your perfect space book it on LiquidSpace! Get protected under DASH®, have payment transparency and access to full LiquidSpace network benefits.
Sit Back. Relax. Your New Office is Ready in 60 Days!
The LiquidSpace team and Venue will prep the space. Set up internet, technology and secure access. Take care of the furniture and accessories delivery to your spec.
Welcome to LiquidSpace
You’re on your way to thousands of new prospects.
Here’s how it works:
It’s free to create listings for all your spaces. You set the availability, price, amenities, and more.
Qualified leads come to you by requesting to tour your space, or you can contact them directly with custom space proposals.
You earn 90% and we take a 10% transaction fee when the deal closes.